12 Clarke Street, Stanthorpe
Affordable Brick Home – $475,000
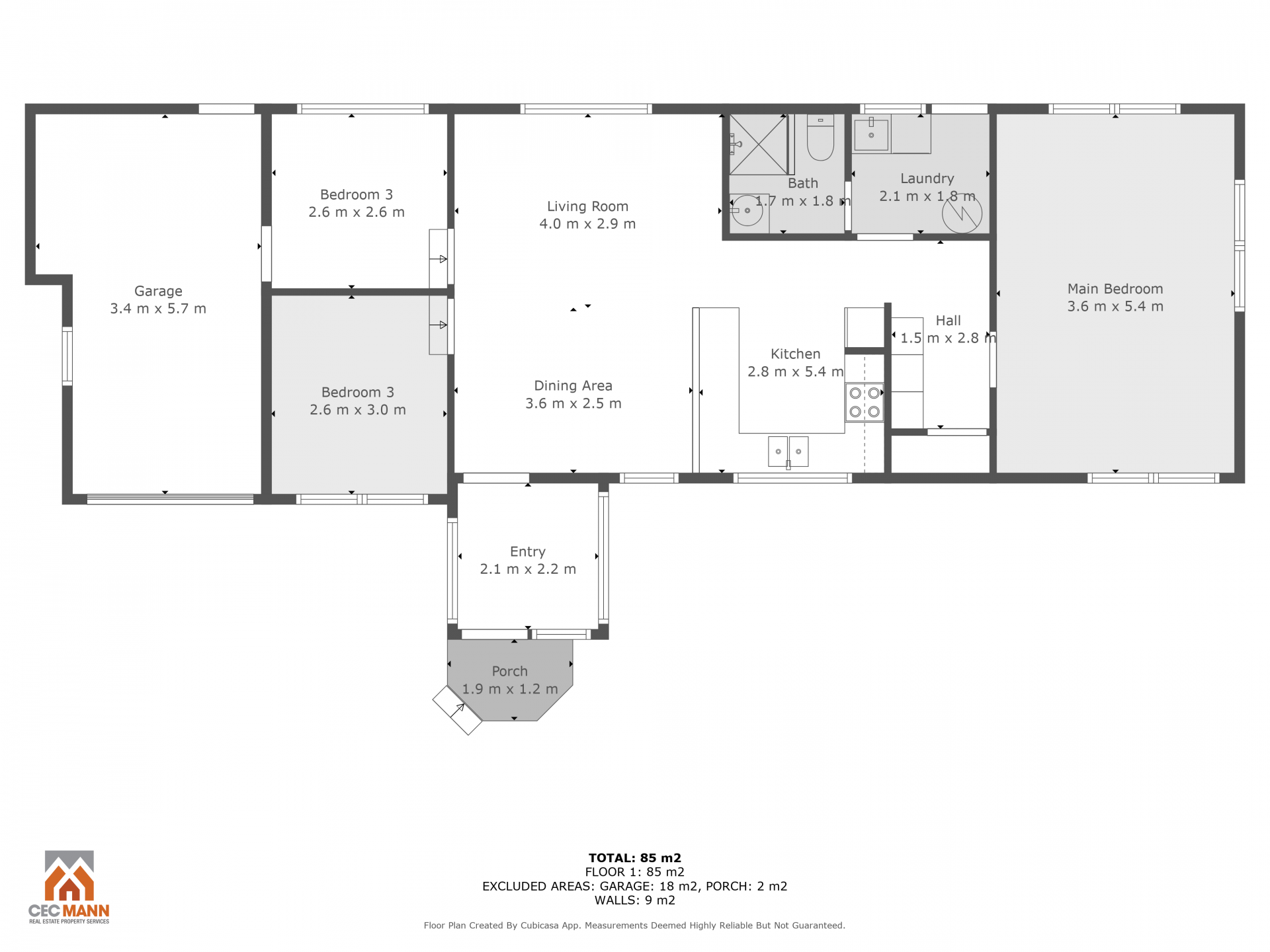
This 3-bedroom brick home may need some TLC, but it’s in a great location and represents excellent value. The layout includes a huge main bedroom, 2 smaller bedrooms, open plan living, older-style kitchen and bathroom, and a front entry.
Car accommodation is provided with a single garage under roof plus a detached single garage. Set on a generous 1,103m² block, there’s plenty of space to work with.
Currently leased until March 2026, this is a solid investment or an affordable entry into the market. Homes in this price range are becoming harder to find — don’t miss out.
Contact Scott Mann on 0427 814 444 to arrange an inspection - currently tenanted so appropriate notice is required.
Car accommodation is provided with a single garage under roof plus a detached single garage. Set on a generous 1,103m² block, there’s plenty of space to work with.
Currently leased until March 2026, this is a solid investment or an affordable entry into the market. Homes in this price range are becoming harder to find — don’t miss out.
Contact Scott Mann on 0427 814 444 to arrange an inspection - currently tenanted so appropriate notice is required.
Contact The Agent
overview
-
b33e00bd6bfe42249f842522bf4635b2
-
House
-
Sold
-
12 Clarke Street Stanthorpe QLD
-
3
-
1
-
2
-
1,103 sqm
-
2
